振動產品分類中心zhendong product classification Center
振動給料機
- 圓盤給料機(DK、DB型)
- KR型座式圓盤給料機
- GZB型擺式給料機
- 棒條式振動給料機(GZT系列)
- 低矮式振動給料機(ZZG系列)
- 管式電磁振動給料機(GZXG系列)
- 振動給料機(GZY系列)
- 普通電機驅動慣性振動給料機(BZG系列)
- 電磁振動給料機(GZ系列)
- 電機振動給料機
- 微型電磁振動給料機(GZV系列)
- 慣性振動給料斗(GD系列)
- 電磁振動給料機(DMA系列)
- 自同步慣性振動給料機(GZG系列)
- 槽式給料機
- 葉輪給粉機|給粉機(GF型)
- 剛性葉輪式給料機(GY型)
- 振動喂料機(GZD系列)
- 喂料機(ZSW系列)
- 密封回轉下料器GLF-M(方形) GLY-M(圓形)
- 往復式給煤機(K型)
- 振動給煤機(GZGM-K系列)
- 寬槽型振動給煤機(GZGKM系列)
- 電磁振動給煤機(ZG系列)
振動給料機
振動輸送機
振動篩
破碎機
其它設備
電機振動給料機相關NEWS
- 電機振動給料機的維護保養要點講解
- 電機振動給料機在使用過程中,可以調節激振力來改變和控制流量,同時本機具有重量輕,體積小,噪音低,耗電少,保養方便、安裝維修方便等特點,如采用封閉式結構,可防止粉塵外溢及環境污染。
- ZZF振動給料機是一種經濟技術指標先進的給料設備
- ZG-80F電機振動給料機又稱振動給料機。ZZF振動給料機在生產流程中,粉體振動給料機在砂石生產線中可為破碎機械連續均勻地喂料,GZG振動給料機效率高,給料能力大。
- 電機振動給料機安全技術
- 電機振動給料機在生產流程中,GZG110-150電機振動給料機環境溫度不超過+40℃;DZG電機振動給料機操作人員,須經安全技術教育。
- GZG型電機振動給料機工作原理和主要尺寸
- GZG系列給料機的給料過程是利用特制的振動電機或兩臺電動機帶動激振器驅動給料槽沿傾斜方向作周期直線往復振動來實現,當振動喂料機槽振動的加速度垂直分量大于重力加速度時,槽中的料被拋起,并按照拋物線的軌跡向前跳躍運動,拋起和下落在瞬間完成,由于激振源的連續激..
- 總公司來電機振動給料機分公司交流標準化班組建設工作
- 電機振動給料機公司經理就年度安全生產ZG-80F電機振動給料機從業標準化創建與檢查自評考核工作情況匯報,現場翻閱了標準化GZG110-150電機振動給料機班組建設工作軟性資料,每個職工的辦公桌上都有于自己DZG電機振動給料機工作崗位相對應的安全生產桌牌
- 挖掘機液壓泵嚴重磨損原因分析及改進
- 電機振動給料機看其是否有明顯的自由下降。若下落明顯則拆卸油缸檢查,密封圈如已磨損應予更換。電磁振動給料機則說明液壓泵嚴重磨損。槽式給料機但由于泵的磨損及內泄,容積效率顯著下降,很難達到額定壓力。液壓泵長時間工作又加劇了磨損,油溫升高,由此造成液壓元件..
- 調速定量給料機的使用維護
- 管式電磁振動給料機在實物標定前,應使用不同質量的砝碼進行多次掛碼標定,以校核傳感器的線性度和重復性。實物標定能真實反映給料機的實際運行狀況, 一般一周一次。
- 維修保養振動篩之秘訣
- 振動篩雖然無需潤滑油給料機,每年仍然需要大修一次,更換襯板,對兩道篩面進行修整等電機振動給料機。振動電機要拆下檢查,并給電機軸承換油,如果軸承損壞,則要更換。 2、振動篩篩格應該經常取出,定期檢查篩面是否破損或凹凸不平,篩孔是否堵塞等。 3、建議制..
- 當前振動篩分機械的主要產品及市場
- 在冶金、煤炭、建材、化工和食品加工等許多工業部門,篩分作業是重要的生產環節之一,要大量使用篩分機械。對于礦物加工行業,如選煤廠或選給料機礦廠,大批篩分機械正承擔著分級、脫水、脫泥和脫介,甚至按質量分選的艱巨任務。就煤炭加工而言,篩分技術也顯得尤其..
- 有關電機振動給料機的技術信息
- BZG系列普通電機驅動慣性振動給料機是吸取了GZG系列、GZY系列振動給料機等機型的優點而開發的。該機是一種理想的高效低噪音給料機,采用低頻率大振幅振動,處理量大。適用于礦山、冶金、化工,建材等行業各種散狀物料的輸送,也適用于水份高,含量大的粘性物料。
- 如何維護好GZG型電機振動給料機
- 如何維護好GZG型電機振動給料機,讓GZG型電機振動給料機更好的為您服務呢?在此我給您支2招
- 電機振動給料機安裝要求
- 2.安裝后的給料機應留有20mm的游動間隙橫向應水平,懸掛裝置采用柔性連接。 3.空試前,應將全部螺栓緊固一次,尤其是振動電機的地腳螺栓,連續運轉3-5小時應重新緊固一次。 4.試車時兩臺振動電機必須反向旋轉,電流及噪音的穩定性,發現異常應及時停車處理。 5.電..
- 電機振動給料機的調試和維護
- 電磁振動給料機的調整、調試主要是電磁鐵鐵芯間隙的調整,雙質點連接彈簧板組的調整、調試。 1、電磁鐵鐵芯與銜鐵間氣隙的整定 電磁振動給料機中鐵芯與銜鐵間氣隙的大小直接影響給料機的正常運行,如調整不當,輕者使電流加大、振幅減小和不能正常運轉,嚴重者將產生鐵芯碰撞..
- 電機振動給料機在運轉過程中的注意事項
- 電機振動給料機在生產流程中,可把塊狀、顆粒狀物料從貯料倉中均勻、定時、連續地給到受料裝置中去,在砂石生產線中可為破碎機械連續均勻地喂料,并對物料進行粗篩分,廣泛用于冶金、煤礦、選礦、建材、化工、磨料等行業的破碎、篩分聯合設備中。
振強明星產品COMMEND
振動給料機
電機振動給料機
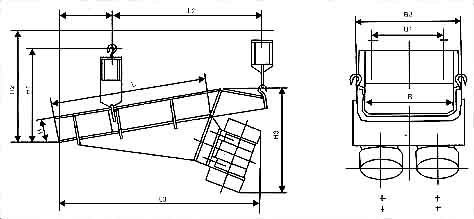
電機振動給料機是利用兩臺偏心振動電機的同步原理,產生與水平面成60°角的合力,通過周期振動,從而推動給料槽內的物料做拋擲或滑行運動,用于把塊狀、顆粒狀及粉狀物料從貯料倉或其它貯料設備中均勻、連續或定量地給到受料設備中,適應于自動配料、定量包裝和自動控制。電機振動給料機廣泛應用于冶金,煤炭,化工建材,陶瓷,糧食,機械,輕工業等行業的需定量給料,自動配料,定量包裝及自動控制給料環節上, 用于把塊狀、顆粒狀及粉狀物料從貯料倉或其它貯料設備中均勻、連續或定量地給到受料設備中,適應于自動配料、定量包裝和自動控制。該產品體積小、噪音低、重量輕、耗電少、安裝維修方便。
![]() |
電機振動給料機主要特點:
電機振動給料機使用過程中,可以調節激振力來改變和控制流量,因而調節方便,流量穩定,噪音低,耗電小,無沖料現象,同時本機具有重量輕,體積小,保養方便等特點,如采用封閉式結構,可防止粉塵外溢及環境污染 。
電機振動給料機工作原理:
給料機的給料過程是利用特制的振動電機或兩臺電動機帶動激振器驅動給料槽沿傾斜方向作周期直線往復振動來實現,當給料槽振動的加速度垂直分量大于重力加速度時,槽中的料被拋起,并按照拋物線的軌跡向前跳躍運動,拋起和下落在瞬間完成,由于激振源的連續激振,給料槽連續振動,槽中的煤連續向前跳躍,以達到給料的目的。

GZG型電機振動給料機安裝與調試、使用與維護:
1、振動給料機如用于配料、定量給料時,為保證給料的均勻穩定,防止物料自流應水平安裝,如進行一般物料連續給料,可下傾10°安裝。對于粘性物料及含水量較大的物料可以下傾15°安裝。
2、安裝后的給料機應留有20mm的游動間隙,橫向應水平,懸掛裝置采用柔性連接。
3、空試前,應將全部螺栓堅固一次,尤其是振動電機的地腳螺栓,連續運轉3-5小時,應重新緊固一次。
4、試車時,兩臺振動電機必須向旋轉。
5、給料時在運行過程中應經常檢查振幅,電流及噪音的穩定性,發現異常應及時停車處理。
6、電機軸承每2個月加注一次潤滑油,高溫季節應每月加注一次潤滑油。








